For Sale

SOLD - Development Site - With Full Planning

Freehold for Sale

Location

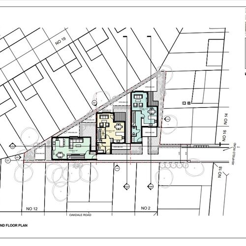
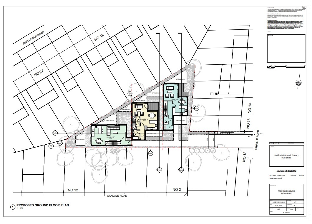
RO 16-18 Ashfield Road, Finsbury Park, London N4 1PB

Details

Garage site consisting of 15 lock up garages and land totalling 275 sq m GIA.
With full/detailed planning permission granted for the demolition of existing lock-up garages and construction of 3x 4 bedroom family houses (2-storey at ground floor and lower ground level) totalling 402 sq m GIA.

Freehold for Sale

Cost

Offers in the region of £850,000